ID CP2795476
SPATIU DE BIROURI 17.5 EUR/MP | STEFAN CEL MARE | FARA SERVICE CHARGE | CENTRALA
ID CP2795476
2,048 €
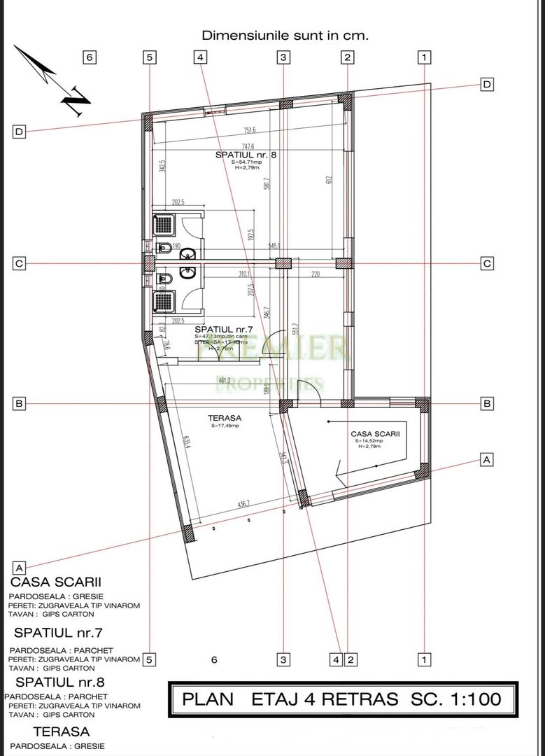
Spațiu birouri/comercial de închiriat – Etaj 4, Obor/Moșilor – vedere superbă asupra Bucureștiului
Disponibil spre închiriere, un spațiu modern situat la etajul 4 al unei clădiri de birouri/comerciale finalizată în anul 2025, amplasată în zona Obor/Moșilor.
📐 Suprafață utilă: 117 mp
💰 Chirie: 2.000 €/lună (nu se aplică TVA)
🛋 Compartimentare: 2 camere + 2 grupuri sanitare
🔥 Facilități tehnice: centrală termică proprie
Dotări și facilități:
• putere electrică: 380 kW
• aer condiționat și încălzire prin radiatoare
• tavan suspendat cu corpuri de iluminat
• cablare voce-date
• chicinetă
• control acces
• pardoseală parchet
• apă, gaz, electricitate
Avantaje suplimentare:
• vedere panoramică asupra Bucureștiului
• acces facil la transport public: RATB autobuz + tramvai în fața clădirii, Metrou Obor – 4 min, Ștefan cel Mare – 7 min, Universitate – 10 min
• cafenea și restaurant în proximitate
Destinații posibile:
Spațiul este pretabil pentru multiple activități, precum:
• clinică medicală
• grădiniță / after school
• cabinete medicale & stomatologice
• laborator de analize
• birouri (notariat, avocatură, IT etc.)
• producție ușoară / depozitare
 
         
         
         
         
         
         
         
         
         
         
         
         
         
         
         
         
         
         
         
         
         
         
         
         
         
         
         
         
         
         
         
         
         
         
         
         
         
         
         
         
         
         
        