ID CP2787895

VILA BIROURI SCOALA GRADINITA AFTER-SCHOOL FIRME | HIDRANT PE FIECARE ETAJ |

ID CP2787895

12,500 €

Spațiu comercial de închiriat
Central, Voluntari
949 mp
2010

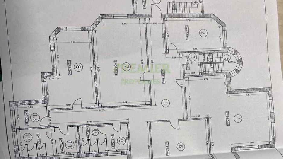
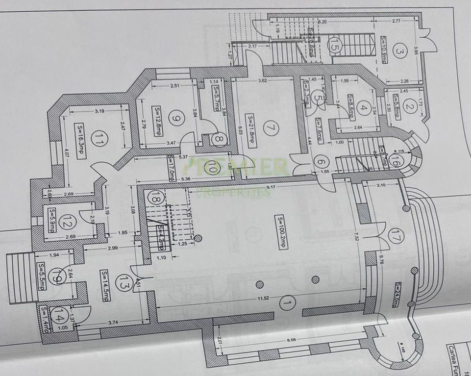
Vilă cu 25 de camere – Ideală pentru , grădiniță sau clinică

Această vilă spațioasă, cu o suprafață generoasă și 32 de camere, este o oportunitate unică pentru investiție, fiind perfect adaptată pentru utilizare ca azil de bătrâni, grădiniță sau clinică medicală.

Vila dispune de hidranti pe fiecare etaj si centrala de incendiu !

In trecut aceasta proprietate A FOST avizata/autorizata ISU!

Caracteristici principale:

• Structură solidă și bine compartimentată, care oferă flexibilitate pentru diverse destinații.

• 25 de camere luminoase, ce pot fi configurate ca dormitoare, cabinete medicale, săli de activități sau birouri administrative.

• Spații comune generoase, inclusiv o sală de mese, livinguri și spații pentru activități sociale.

• Bucătărie utilată și mai multe băi, perfect adaptate pentru a satisface nevoile unui număr mare de persoane.

• Accesibilitate ridicată – rampe de acces pentru persoane cu mobilitate redusă și posibilitate de adaptare pentru standarde medicale.

• Grădină și curte spațioasă, ideale pentru recreere, terapii în aer liber sau activități pentru copii.

Amplasare:

Vila este situată într-o zonă liniștită și accesibilă, aproape de mijloace de transport, farmacii și alte facilități esențiale. Locația sa permite atât intimitate, cât și acces rapid la centrul orașului sau alte puncte de interes.

Potrivită pentru:

enajarea unei grădinițe sau a unui centru educațional, beneficiind de spațiile sigure și generoase pentru copii.

• Înființarea unei clinici medicale sau a unui centru de recuperare, oferind camere pentru consultații, tratamente și terapii.

Această proprietate oferă un potențial uriaș pentru cei care doresc să dezvolte un proiect de amploare într-un spațiu modern, funcțional și versatil.

Citește mai mult

  • Tip imobil
    Casă / Vilă
  • Etaj
    3
  • Număr camere
    25
  • Număr bucătării
    2
  • Suprafață construită
    330 mp
  • Suprafață utilă
    949 mp
  • Suprafață teren
    3,000 mp
  • Disponibilitate
    Imediat
  • Compartimentare spațiu
    Compartimentat
  • An construcție
    2010
  • Construcție nouă
    Da

Facilități

Acces pentru persoane cu dizabilități
Apă
Canalizare
Centrală termică
Contorizare separată
Curent
Gaz
Parcare deschisă
Utilități în zonă
Cristian Lapte - Premier Properties
Cristian Lapte
Senior Consultant

0750279494


Solicită chiar acum o vizionare
Telefon
Sună acum Solicită vizionare
Necesare:

Site-ul nu poate funcționa corect fără aceste cookie-uri. Vezi cookie-urile

Statistică:

Strângem statistici anonime despre voi, vizitatorii unici, pentru a vă îmbunătăți experiența dumneavoastră. Vezi cookie-urile

Marketing:

Pentru a ne promova mai eficient serviciile noastre, folosim cookies pentru a vă identifica și a vă oferi proprietăți și servicii personalizate. Vezi cookie-urile

Acest site folosește cookies, află detalii. Alege ce tipuri de cookies dorești să permitem: