ID CP2795944
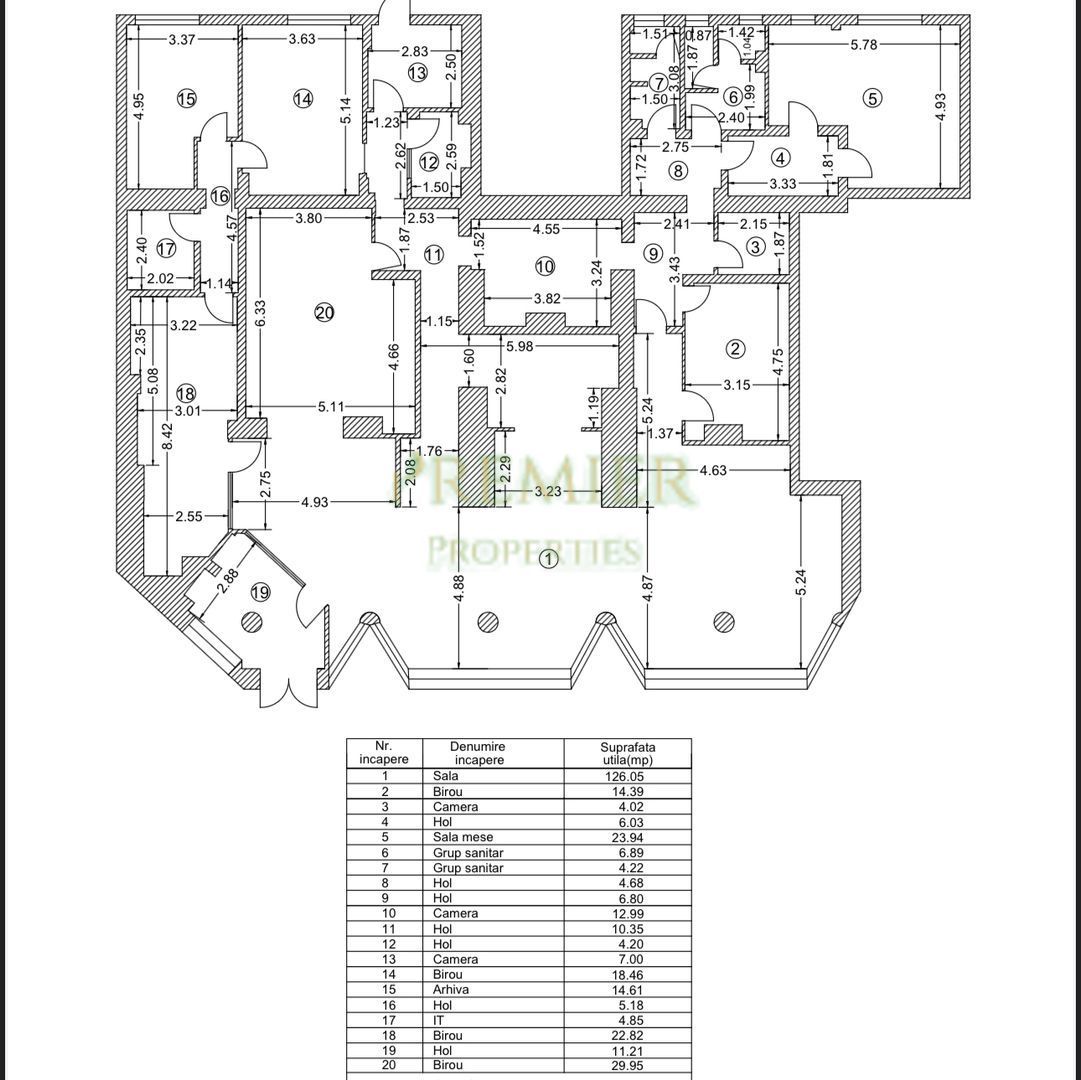
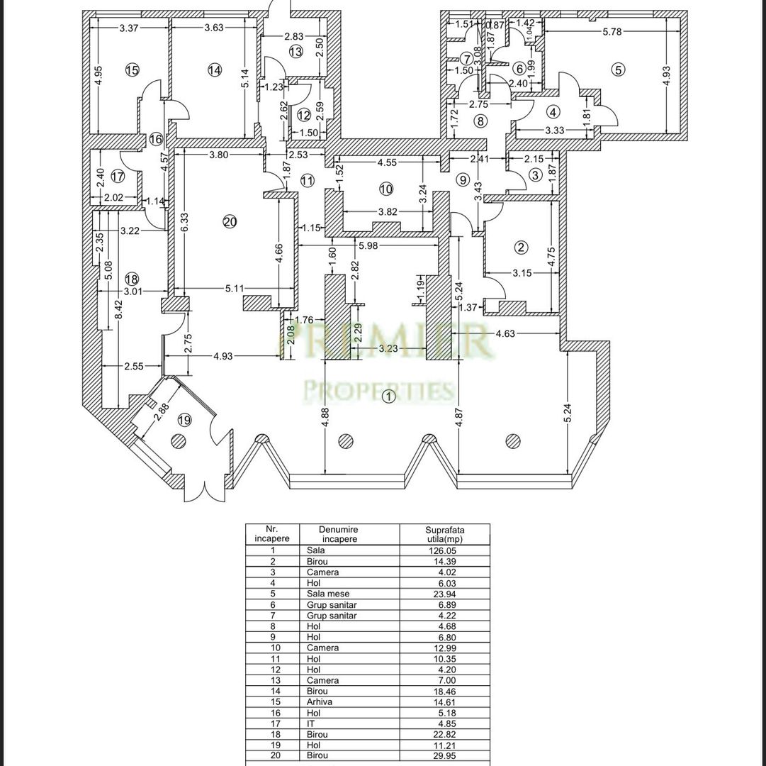
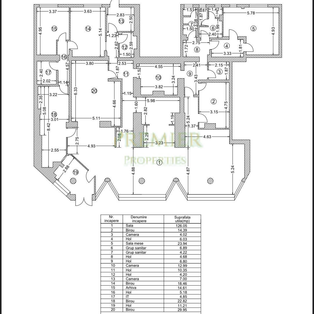
338 MP |SPATIU COMERCIAL INEDIT STRADAL | VITRINA | MULTIPLE UTILIZARI |
ID CP2795944
10,490 € (negociabil) + 21% TVA
Spațiu Comercial Ultracentral – Vitrină Generoasă – Zona Dorobanți
Vă prezentăm un spațiu comercial de excepție, situat ultrastradal, în inima uneia dintre cele mai exclusiviste și circulate zone din București – Dorobanți.
✅ Suprafață generoasă, compartimentare flexibilă
✅ Vitrină stradală amplă, ideală pentru expunere maximă
✅ Vizibilitate excelentă, trafic pietonal și auto intens
✅ Potrivit pentru multiple activități comerciale: retail, showroom, beauty, clinică, bancă, cafenea etc.
✅ Acces facil către mijloace de transport în comun
Spațiul oferă oportunități excelente pentru dezvoltarea unei afaceri într-unul dintre cele mai prestigioase cartiere ale Capitalei.
📍 Nu ratați ocazia de a vă poziționa brandul într-o locație premium!
 
         
         
         
         
         
         
         
         
         
         
         
         
         
         
         
         
         
         
         
         
         
         
         
         
         
         
         
         
         
         
        